Paylaşın

MİMARLIK

Vadide yeşil bir ev

Geleneksel kır evi formundan ilham alınarak tasarlanmış, sade ve çağdaş konut projesi, modern mimari yaklaşımla yeniden yorumlanmıştır.

 

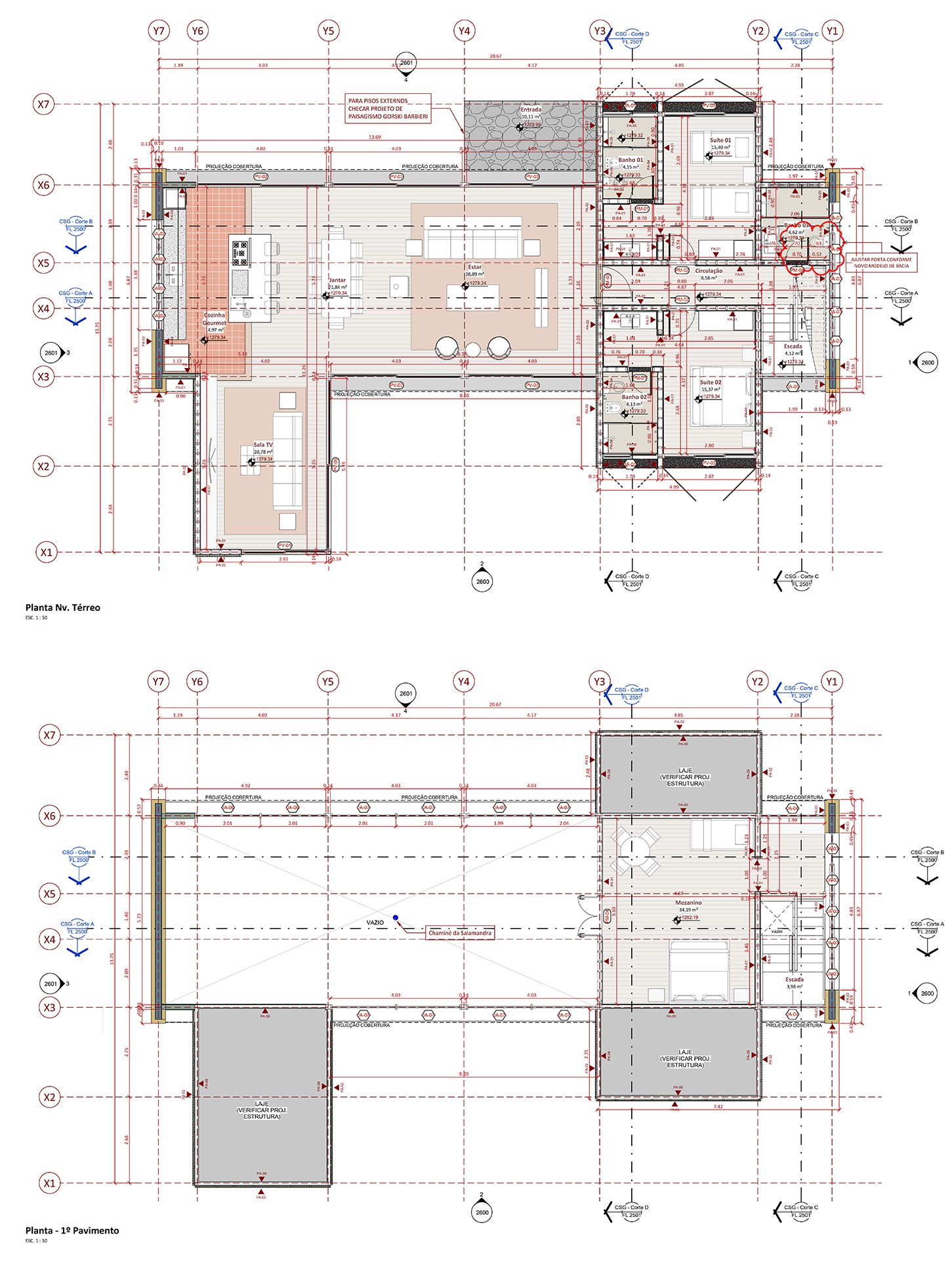
Brezilya’nın São Paulo şehrinin São Bento do Sapucaí kasabasında konumlanan Vale Verde Evi, Bruschini Arquitetura tarafından tasarlandı. Ev sahiplerinin isteği doğrultusunda tasarımda sadelik, işlevsellik ve estetik ön planda tutulmuştur. 260 metrekarelik yapı, beşik çatıyla örtülü düz uzunlamasına kurgulanan ana blok ve ona eklemlenen düz çatılı üç modülden oluşuyor.

 

 

Oturma, yemek ve mutfak alanlarının bulunduğu ana hacimde yüksek tavan sayesinde çok amaçlı bir asma kat oluşturulmuştur. Ana hacimden çıkan düz çatılı modüller ise yatak odaları ve TV odasına ayrılmıştır. Bu alanlarda tavan yüksekliği daha düşüktür ve bu sayede daha sıcak, samimi mekânlar oluşturulmuştur.

 

 

Evde geniş açıklıklar ve şeffaf yüzeyler kullanılarak doğayla güçlü bir ilişki kurulmuştur. Alüminyum doğramalar ve cam yüzeyler sayesinde manzara tüm mekânlara taşınır. Malzeme seçiminde ahşap ana unsur olarak öne çıkar. Yapı sistemi, yapıştırılmış lamine ahşap (GLT) taşıyıcı elemanlar ve woodframe duvarlardan oluşur. Cephede ise peyzajla uyum sağlamak amacıyla yeşil renkte boyanmış çam lameller kullanılmıştır. Taş ve cam, ahşabı tamamlayan yardımcı malzemelerdir.

 

 

Zorlu arazi koşulları nedeniyle prefabrike ve modüler, kuru inşaat yöntemi tercih edilmiştir. Bu sayede hem atık miktarı azaltılmış hem de doğaya minimum müdahale sağlanmıştır.

 

 

 

Mimari:  @bruschini Bruschini Arquitetura

Fotoğraflar: @pedro.n.prata Pedro Napolitano Prata


Yorumunuzu bırakın

Your email address will not be published. Required fields are marked *
Sadece kayıtlı kullanıcılar yorum bırakabilir.

Paylaşın


avatar
Zehra Karahasan

Editor - yesilodak.com