Paylaşın

MİMARLIK

Şehirde nefes aldıran yalın bir ev

Yeniden kullanılan malzemelerle inşa edilen ev projesi, avlu ve bahçesiyle kentsel yoğunluk içinde sakin ve esnek bir yaşam alanı sunuyor.

 

Avustralya, Melbourne’de konumlanan Carlton Cottage, Lovell Burton Architecture tarafından tasarlandı. 150 metrekarelik ev, eski bir kulübenin genç bir aile için yeniden tasarlanmasıyla ortaya çıktı. Mimari ekip, projede hem su yönetimi, ışık ve ısı performansı gibi pratik sorunlara yanıt vermiş, hem de tarihsel bağlamdan beslenen çağdaş bir mekânsal kurguyla esnek bir yaşam alanı tasarlamış.

 

 

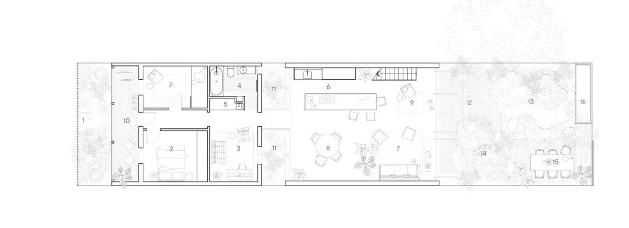
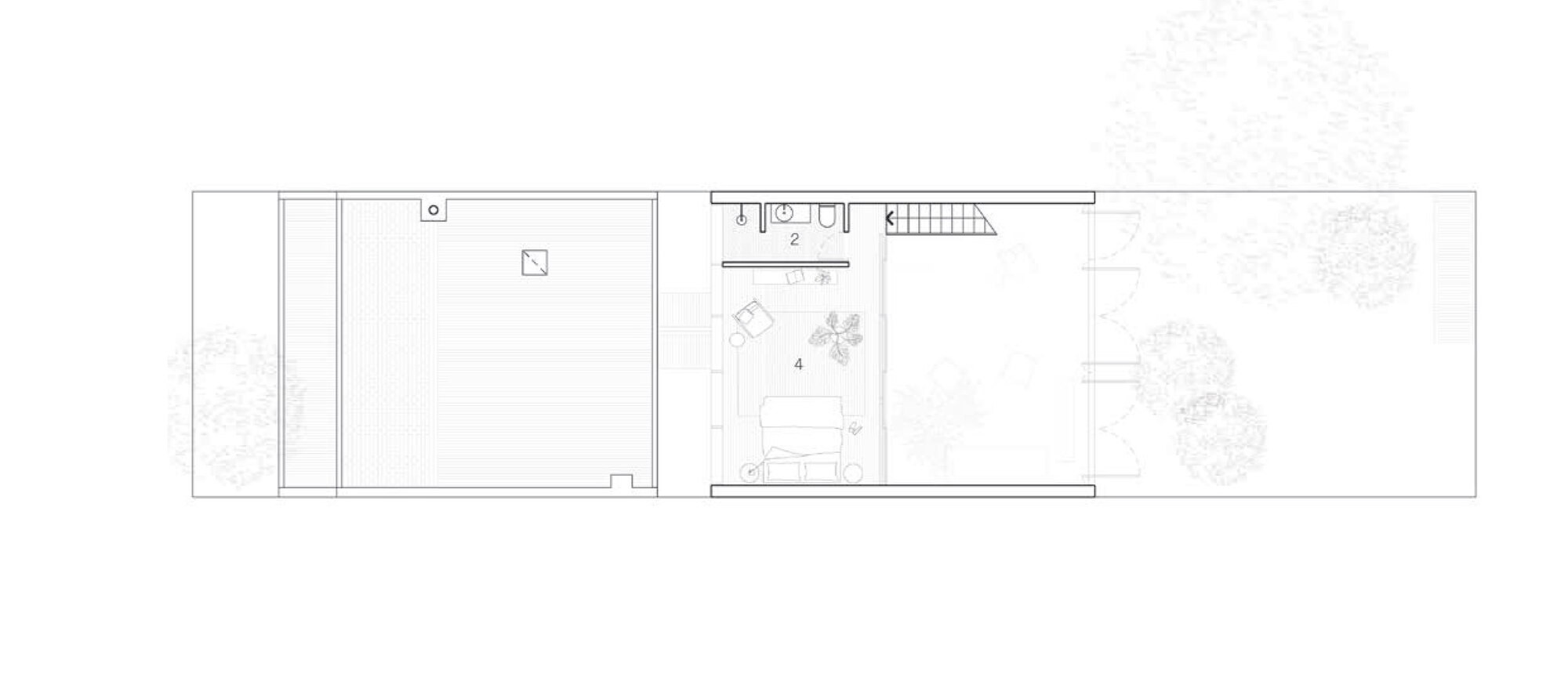
Yerleşim, 12 karelik bir şema üzerinden düzenlenmiş. Eski kulübe çocuk odaları, çalışma alanı ve ıslak hacimlere dönüştürülürken; yeni ek yapı mutfak, yaşam alanı ve asma katta esnek bir yatak-banyo düzeni içeriyor. İki bölüm arasındaki avlu, yapının “akciğeri” işlevini görerek doğal havalandırma sağlıyor. Arka bahçe ise oyun, teras ve yemek alanlarını barındıran yeşil bir odak noktası sunuyor.

 

 

Yeni bölüm, mevcut beşik çatıyı tamamlayan geniş tek eğimli çatısıyla öne çıkıyor. Çatı, ışığı yönlendiriyor, yağmur suyunu topluyor ve yapıyı çevredeki dokuya uyumlu kılıyor. İç mekânda yükselen tavan ve dairesel çatı penceresi gün ışığını yumuşak bir biçimde içeri taşıyor.

 

 

 

Projede malzeme seçiminde sürdürülebilirlik ön planda: yeniden kullanılan tuğlalar, yerel sert ağaç döşemeler, geri kazanılmış taş plakalar ve zamanla patina kazanacak ceviz mutfak gibi detaylar yapıya hem şiirsellik hem de uzun ömürlülük katıyor.

 

 

 

 

 

 

Mimari: Lovell Burton Architecture

Fotoğraflar: Rory Gardiner


Yorumunuzu bırakın

Your email address will not be published. Required fields are marked *
Sadece kayıtlı kullanıcılar yorum bırakabilir.

Paylaşın


avatar
Ozan Akalın

Editor - yesilodak.com